TRỤ SỞ TRƯỜNG CAO ĐẲNG Y DƯỢC CỘNG ĐỒNG

Dự án trụ sở Trường Cao Đẳng Y Dược Cộng Đồng tọa lạc tại vị trí đắc địa, được hình thành bởi đường nét kến trúc đơn giản, mang đặc điểm cơ bản của một tòa nhà văn phòng hiện đại, với những nét nhấn nháy về hình khối và màu sắc tạo cho toàn thể tòa nhà có một chất rất riêng. Dự án thành công về mặt thiết kế, phân bổ công năng lõi chủ đầu tư yêu cầu mà không thiếu đi các yếu tố công cộng để được duyệt làm một tòa nhà văn phòng đúng nghĩa, thi công vượt qua sự mong đợi của phía chủ đầu tư, tổng thể nổi bật trên cung đường Trần Thủ Độ. Mời Quý khách hàng cùng Mivicons soi lại toàn cảnh dự án từ lúc thiết kế đến thi công và bàn giao đưa vào sử dụng nhé.

1. Thông tin tổng quát dự án Trụ Sở Trường Cao Đẳng Y Dược Cộng Đồng– Chủ đầu tư: Trường Cao Đẳng Y Dược Cộng Đồng– Đại diện CĐT: Chủ tịch HĐQT: Ông Nguyễn Tuấn Anh– Địa điểm công trình: số 38 Trần Thủ Độ, Hoàng Mai, Hà Nội– Tổng diện tích sàn: 1130 m2– Số tầng: 7.5 Tầng– Phong cách thiết kế: Hiện đại, tập trung vào hình khối và mảng miếng. Đường nét thiết kế rõ ràng mạch lạc, trẻ trung & năng động.

2. Giải pháp thiết kế Trụ Sở Trường Cao Đẳng Y Dược Cộng Đồng

– Lấy ý tưởng từ chiếc mũ Mortarboard truyền thống trong lễ tốt nghiệp của sinh viên, đội ngũ Kiến trúc sư của Mivicons đã chuyển hóa hình tượng truyền thống này trong lễ tốt nghiệp thành cấu trúc và mái của công trình. Với mái vuông cách điệu và cột chịu lực chéo 2 phương đối nhau đảm bảo kết cấu mà lại tạo điểm nhấn cho tổng thể. Phân bổ công năng lõi chủ đầu tư yêu cầu mà không thiếu đi các yếu tố công cộng để có đầy đủ yếu tố pháp lý đưa vào sử dụng.

Tầng 1 với 2 sảnh lớn ở 2 phía mặt tiền, tận dụng tối đa không gian và vách kính lớn. Cụm thang máy và thang bộ đi kèm wc đặt lui vào một bên hông phần sau nhà, thang thoát hiểm chạy từ tầng 1 tiếp cận thẳng với mặt tiền để phòng các vụ hỏa hoạn xảy ra. Với nhiều không gian lớn được phân tách rõ ràng. Ngôn ngữ thiết kế hiện đại, đơn giản đầy đủ công năng, đáp ứng đầy đủ các tiêu chuẩn pccc.

Tầng 2 là cấu trúc không gian lớn được phân khu chức năng bằng các vật liệu nhẹ hoặc vách lửng đơn giản. Phù hợp xu hướng mô hình văn phòng hiện nay.

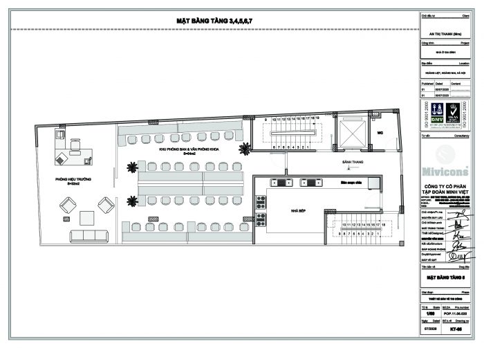
Từ tầng 3 đến tầng 7 có cấu trúc không gian đồng nhất, tận dụng tối đa diện tích cho nhu cầu của chủ đầu tư. Trong đó, tầng 4 có một vị trí nhà bếp riêng phục vụ những bữa cơm đảm bảo dinh dưỡng cho sức khỏe của cán bộ trong toàn khối văn phòng.

3. Hình ảnh thực tế thi công trụ sở Trường Cao Đẳng Y Tế Cộng Đồng

Công tác phá dỡ công trình cũ và tiến hành ép cọc. Nối cọc được định vị chuẩn tâm, nối cọc bằng 4 bản mã được hàn chắc chắn.Sau khi ép cọc, Mivicons làm công tác dựng lán trại cho ae công nhân ở trong quá trình làm móng và kho chứa vật tư phục vụ công trình. Sử dụng 100% thép hộp mạ kẽm.Đổ lót và làm thép móng, song song với đó là công tác neo chống công trình lân cận bằng thép hình u, i, c.Tiến hành xây tường các hệ thống ngầm sau khi đã hoàn thành móng, Quý khách hàng có thể nhìn thấy công đoạn xây tường gạch ngay từ phần móng của Mivicons rất chỉn chu qua hình ảnh thực tế này.Toàn bộ hệ giằng, cột chống của công trình được sử dụng chất liệu thép mạ kẽm. 100% công trình Mivicons đã và đang thi công không sử dụng các loại cột chống bằng tre hoặc cột chống gỗ tạp bán tràn lan trên thị trường, chất lượng không đảm bảo.Hiện nay chỉ có ván phủ phim Plywood hoặc một số loại tương đương mới đảm bảo được chất lượng và thẩm mỹ của bê tông. Mivicons nói không với các loại ván tạp, ván gỗ xẻ… không đảm bảo được chất lượng bê tông, hay xảy ra hiện tượng co ngót trong môi trường độ ẩm cao dẫn đến làm biến dạng bề mặt bê tông.Công đoạn làm thép sàn, dầm và các cấu kiện phụ trợ.Công xôn và thang bộ…Hoàn thiện thép sàn, cột chuẩn bị cho công tác đổ bê tông.Lắp dựng ván phủ phim, gông cột, đổ bê tông cột…Tháo dỡ ván khuôn và đi các hệ thống kỹ thuật cần thiết sát trần bê tông…Toàn bộ quá trình thi công Mivicons đều bọc lưới gai và hệ giáo an toàn để: an toàn lao động, ngăn vật tư rơi vãi xuống làm nguy hiểm cho giao thông xung quanh, tránh bụi đảm bảo vệ sinh môi trường và phục vụ công tác trát ngoài và những cấu kiện liên quan…Hình ảnh treo ti thép mạ kẽm đỡ hệ ống của điều hòa không khí theo sơ đồ…Toàn cảnh công trình nhìn từ bên ngoài, toàn bộ công trình được bọc lưới đảm bảo an toàn, tránh bụi, vật rơi tuân thủ quy định an toàn lao động…Lắp dựng vách kính mặt tiền, aluminum bọc, cách hạng mục theo thiết kế…Toàn cảnh công trình trong quá trình hoàn thiện mặt tiền…

Và hoàn thiện bên trong công trình.

Lối thiế kế đơn giản nhưng với những khung hình và khối làm điểm nhấn tạo cho công trình sau khi hoàn thiện xong có một nét rất riêng mà không bắt gặp ở bất kỳ công trình nào khác.

Cảm ơn Quý khách hàng đã luôn tin tưởng sản phẩm và dịch vụ của Mivicons. Chúng tôi sẽ luôn nỗ lực để mang đến chất lượng sản phẩm và dịch vụ tốt nhất. Những sản phẩm của chúng tôi khởi nguồn từ trí tuệ, hoàn thiện bằng những bàn tay lao động giàu kinh nghiệm và trải nghiệm, sáng tạo nên phong cách, thổi hồn vào không gian sống, tinh tế trong từng đường nét và sự ổn định của chất lượng. 

 
Contact Me on Zalo
0868 020 000